123 Studio


bar CHEF

 

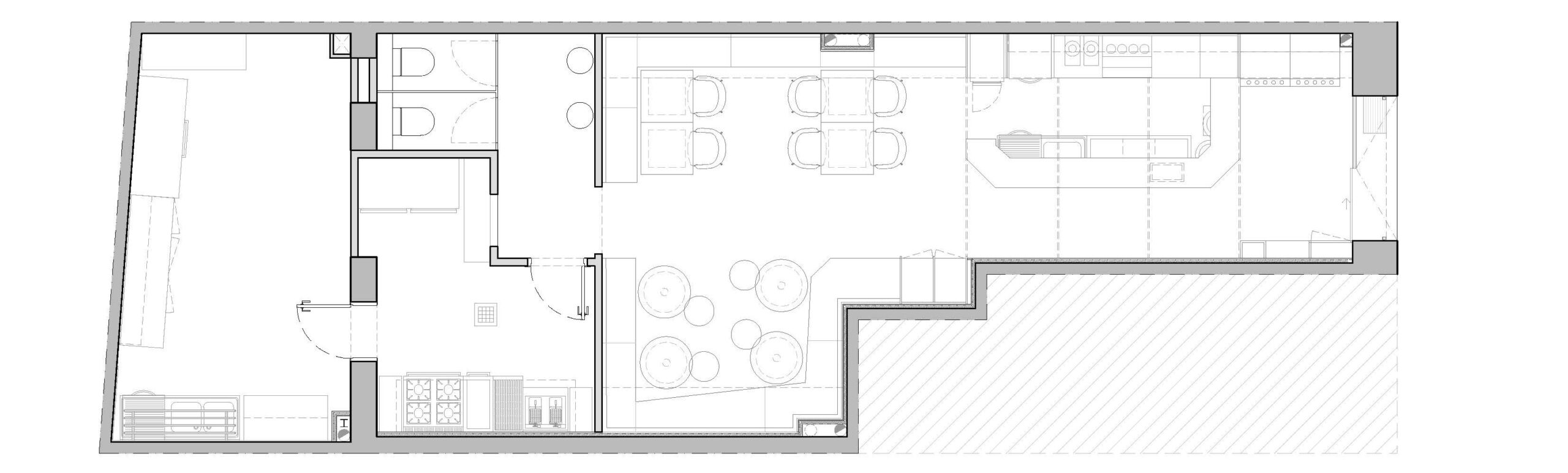
La intervención se plantea a partir de una condición clave: conservar la licencia de actividad existente de un bar histórico, en un contexto urbanístico que ya no permite otorgar nuevas licencias de este tipo. Bajo esta premisa, la distribución original del local se mantiene, pero se transforma por completo su imagen comercial para adaptarse al nuevo propietario y a una clientela contemporánea.

Los materiales elegidos refuerzan la idea de calidez y confort: panelados de madera clara que envuelven el espacio, pavimentos continuos de tono neutro y techos resueltos con paneles acústicos de fibras naturales, que mejoran tanto la atmósfera como la experiencia sonora. La iluminación se convierte en un recurso expresivo: líneas LED integradas en el techo marcan la perspectiva hacia el fondo, mientras que luminarias circulares generan un delicado halo sobre las paredes texturizadas, creando una ambientación íntima y acogedora.

El resultado es un lugar renovado, que conserva su esencia como punto de encuentro de barrio pero ofrece una identidad fresca y contemporánea. Un bar cálido y relajado, donde materiales, luz y mobiliario a medida construyen una atmósfera cercana y hospitalaria.