123 Studio


Apartamento Lepanto

 

 

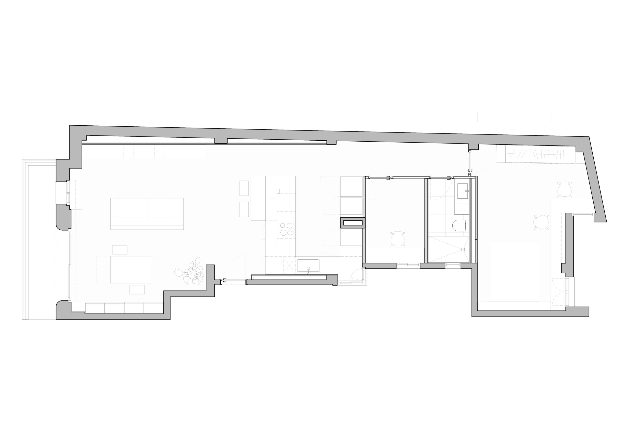
El proyecto parte de una estrategia clara: abrir un espacio originalmente fragmentado por pasillos y distribuidores, transformándolo en un único ambiente continuo donde se integran cocina, salón y comedor. La nueva organización potencia la entrada de luz natural y redefine los usos cotidianos bajo una lógica más fluida y contemporánea.

La materialidad refuerza esta idea de unidad: un pavimento continuo de microcemento recorre todas las estancias, generando homogeneidad y amplitud. En contraste, el color rosa adquiere protagonismo como identidad del proyecto, presente tanto en los aplacados cerámicos de la cocina como en las piezas hexagonales del baño. La calidez de la madera natural en el mobiliario de la cocina equilibra el conjunto, aportando un carácter acogedor y humano en el corazón del hogar.

La iluminación se diseña como parte integral de la atmósfera: líneas de LED definen la luz ambiental y se combinan con apliques de base rosada, extendiendo el lenguaje cromático a los detalles. El resultado es un apartamento luminoso y sereno, donde cada material y cada gesto contribuyen a un espacio armónico y de fuerte identidad visual.