123 Studio


Apartamento Meridiana

 

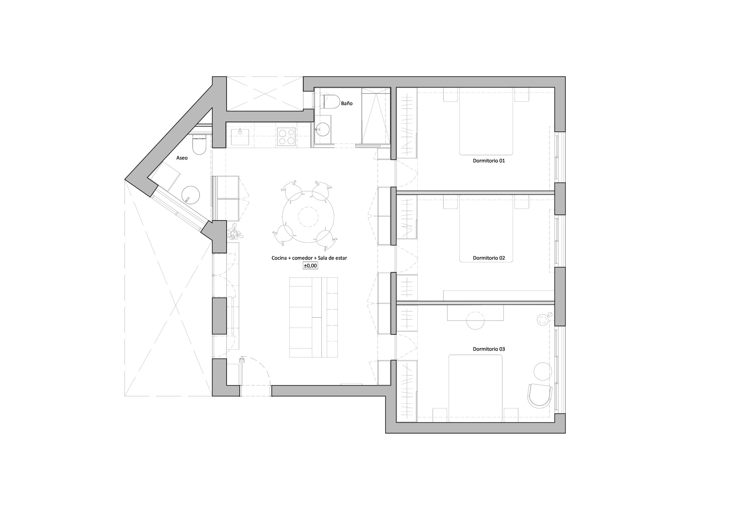
El Apartamento Meridiana es una reforma integral concebida para transformar una vivienda rígida en un hogar fluido y acogedor. La distribución original no respondía a las necesidades familiares, por lo que se replanteó el espacio desde cero. El único muro de carga existente se convirtió en el eje central del diseño, inspirando un nuevo esquema basado en apertura y continuidad.

A la izquierda de este eje se organizan las zonas de día: salón, comedor y cocina, un espacio abierto pensado para la convivencia y la socialización. En esta misma área se integran los baños y aseos, aportando comodidad y funcionalidad.

La zona de noche, situada a la derecha del eje, se compone de tres dormitorios de tamaño similar que ofrecen un ambiente íntimo y tranquilo. El muro de carga no sólo estructura el espacio, sino que oculta armarios y separaciones, ampliando visualmente los límites.

Los materiales y acabados refuerzan la sensación de unidad: tonos crema en armarios y almacenaje, pavimentos continuos y baños revestidos con la misma paleta cálida. La integración de las rejillas de ventilación y el mobiliario a medida refuerzan la limpieza visual del conjunto.

El resultado es un hogar contemporáneo, sencillo y sereno, donde cada detalle responde a las emociones y necesidades de la familia. El Apartamento Meridiana no es solo una reforma, sino una nueva manera de habitar.