123 Studio


Apartamento Palència



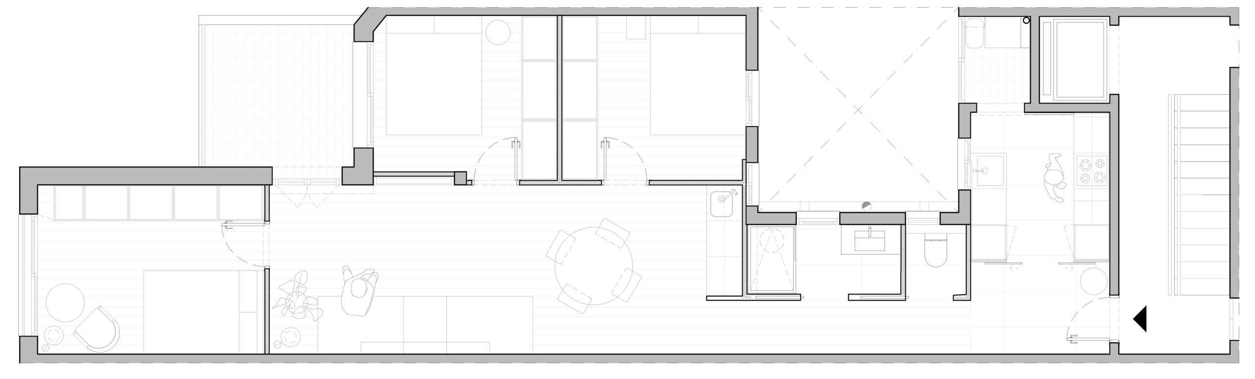
La intervención parte de una estrategia clara: redistribuir el espacio interior para eliminar pasillos y áreas residuales, generando un salón–comedor amplio y tres dormitorios de la mayor superficie posible. La configuración responde a las necesidades de la familia, incorporando dos cabinas de lavabo independientes —una con ducha y pica, la otra con inodoro— que optimizan los tiempos de uso diario y aportan funcionalidad.

El proyecto reorganiza por completo la vivienda: la cocina, antes situada en el centro, se desplaza hacia la entrada y se materializa como un volumen blanco y neutro, acompañado por un espejo a medida de suelo a techo que amplifica la percepción espacial. La continuidad del pavimento de parquet de madera unifica las estancias, mientras que en las zonas húmedas un porcelánico en tono hormigón gris introduce un contraste sereno.

Las puertas invisibles a medida, sin marco y hasta el techo, refuerzan la sensación de pureza formal y ligereza, integrando los accesos de forma casi imperceptible. El blanco cálido de las paredes y del mobiliario fijo crea un lienzo neutro que potencia la luz y permite que pequeños acentos —colores, texturas, reflejos metálicos— encuentren su lugar en equilibrio.

El resultado es un apartamento funcional y contemporáneo, en el que cada elemento está diseñado para responder a un uso preciso, pero al mismo tiempo contribuye a un lenguaje espacial unitario, sobrio y elegante.