123 Studio


TOKO Pescadería

 

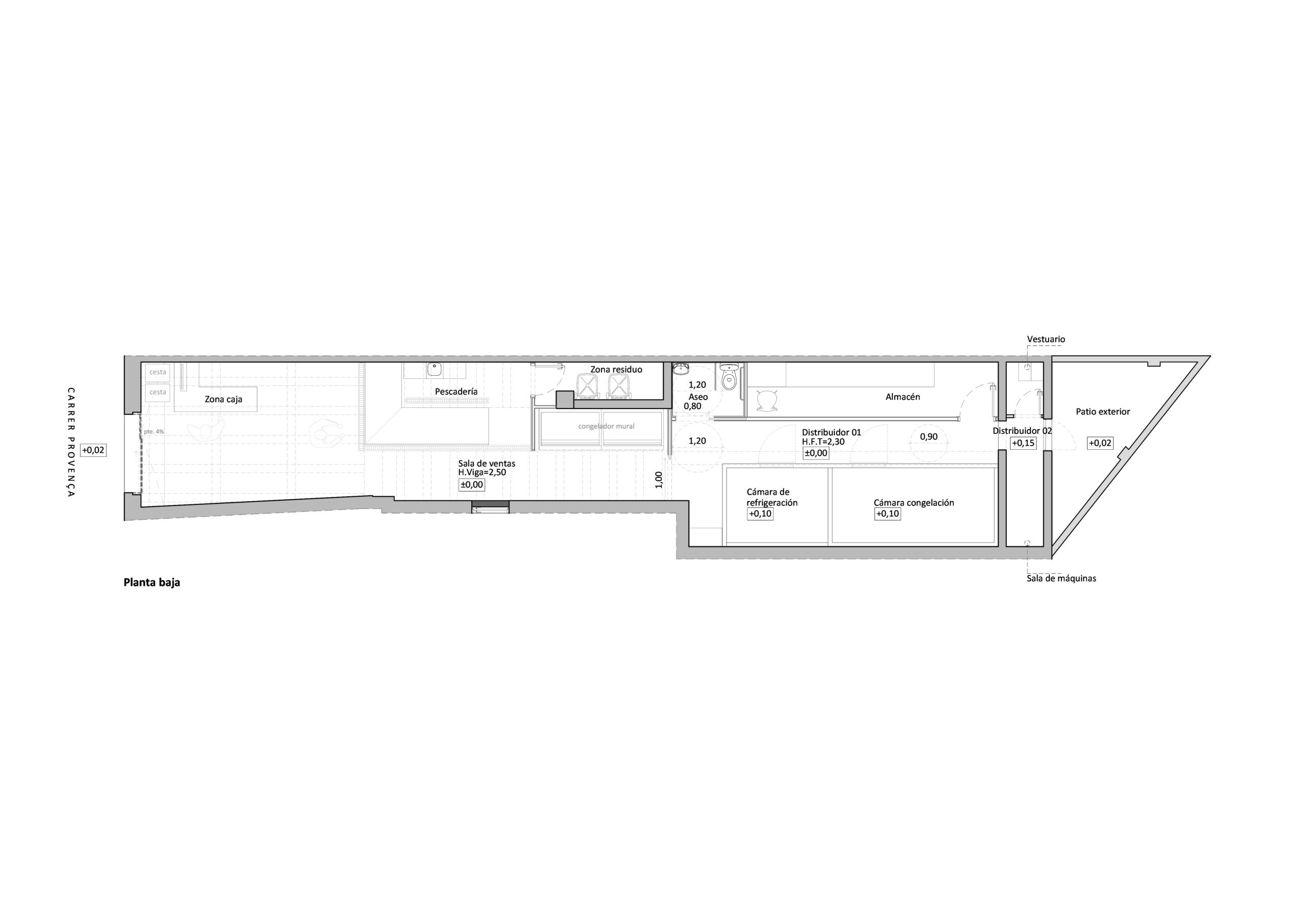
La intervención parte de las condiciones arquitectónicas del local, que definen la estrategia de diseño y distribución. El espacio se organiza a partir de dos cajas claramente diferenciadas: la primera, situada en la parte delantera y con mayor altura, funciona como zona de bienvenida, espera y cobro; la segunda, de altura más reducida, concentra los usos internos vinculados a la actividad —zona de exposición y manipulación del pescado, cámaras frigoríficas, almacenes y oficinas—, garantizando funcionalidad y cumplimiento normativo.

La idea de las dos cajas se enfatiza también en la materialidad. La caja de acceso se reviste con cerámica rectangular en un azul claro que se eleva desde el suelo hasta el techo, mientras que la caja posterior adopta un azul oscuro del mismo formato. Este contraste cromático simboliza la profundidad del mar: desde la superficie más luminosa hacia un interior más profundo e intenso.

Las vigas originales se mantienen vistas, tratadas con mortero proyectado ignífugo, que además de cumplir con la seguridad evocan el movimiento ondulado del agua. La iluminación lineal refuerza las transiciones entre espacios y acentúa la atmósfera fresca y contemporánea.

El resultado es una pescadería que trasciende lo meramente funcional: un espacio donde la experiencia del cliente y la identidad del producto se integran en un lenguaje arquitectónico coherente, limpio y evocador.